破舊立新 絕佳比例格局帶來優雅生活
轉載-
【設計家】:https://www.searchome.net/article.aspx?id=33335
作者_王莉姻 圖片提供_耀昀創意設計
格局方正,是一般屋主最喜愛的屋型,尤其是在毛坯或新成屋階段,還可以藉由客變,調整出最適合的配置。但是,以老屋來說,除去因為年代長久的管線屋況需修繕外,傳統格局不佳已不適合現代生活,或是即將入住者的人口結構不同,而不再符合需求,都必須再次賦予它重生的意義。經常改造老屋,而且十分有心得的耀昀創意設計蔡昀璋設計師,將兩間十分棘手的長型屋,依據居住者的生活習性,重新整頓成動線合宜、比例絕佳的新生活天地。
破舊立新 長型老屋改造案例 CASE x 2
CASE 01
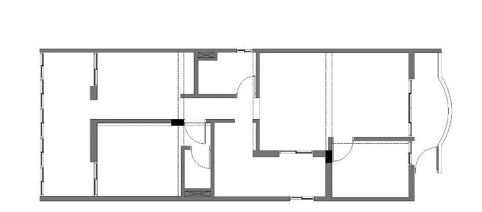
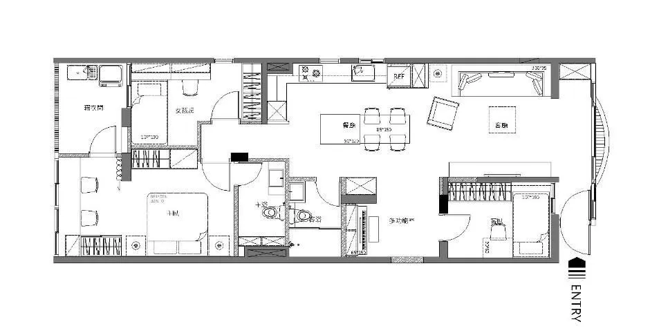
這間長型屋有著難以避免的單面採光困擾,對帶著六歲稚齡老大與新生兒的夫妻倆人來說,需要的是給小孩更為明亮寬敞的生活空間,以及可以隨時照應的動線考量。

祕技 01 開放公領域分享採光
設計師將公領域打通串聯,去掉長型屋走道阻礙採光的困局,進門規劃半矮鞋櫃,盡量讓客廳的自然光線得以分享全屋,同時也能保持通暢的動線,讓孩子有更安全的生活空間。

祕技 02 以餐廚區為生活重心
為了讓喜歡烹飪的女主人,不管是在客廳或下廚時,都能隨時照看小孩,設計師將餐廳、廚房移位,重新規劃在屋子正中央,面積比例幾乎與客廳不相上下,以一張大餐桌凝聚情感,讓全家人以餐廳作為生活重心。為了讓採光更充足,特別在牆面開出小窗;格局調整後,更多出一間多功能室可以擺放鋼琴!


▲Before 平面圖提供_耀昀創意設計

▲After 平面圖提供_耀昀創意設計
CASE 02
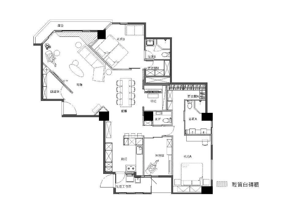
屋主長年在澳洲生活,一家六口回台時,經常要解決居住難題。因此,在父親家附近買下在台居所,老屋重整後不但要符合人口結構,住起來舒適不擁擠,還要滿足合西式生活需求。

祕技 01 打斜格局比例重規劃
設計師摒棄傳統以櫃子拉平牆面,把屋子每個區塊都喬正的手法,而是將原始格局中過大的客廳拉成斜角,分出部分腹地給次臥,再利用角度形成的畸零區做滿隱藏收納。因此,電視牆後方有個小儲藏室收納雜物,旁面則是小巧的展示平檯,空間大器而不亂。沙發牆後方則是多出臥榻區,成為小朋友的遊戲空間。

祕技 02 無動線設計空間變大
打斜後的格局,視線不再受制直角方框,無動線的空間設計,讓人從客廳就能一眼望向後方的餐廳、廚房與琴房,營造出更有景深感的視覺穿透,原先的過道也納入使用坪效,讓原本侷促的餐廳空間放大,變成動線樞紐,大家族也能一起用餐,感情更融洽。


▲Before 平面圖提供_耀昀創意設計

▲After 平面圖提供_耀昀創意設計
小編的最愛
在廚房牆上雋刻女主人的名字,打造獨一無二的專屬天地;為習慣西方生活的屋主設置雙水槽洗面檯,這些貼心巧思,更讓屋主身心獲得最大的滿足。
【設計家】:https://www.searchome.net/article.aspx?id=33335
作者_王莉姻 圖片提供_耀昀創意設計
格局方正,是一般屋主最喜愛的屋型,尤其是在毛坯或新成屋階段,還可以藉由客變,調整出最適合的配置。但是,以老屋來說,除去因為年代長久的管線屋況需修繕外,傳統格局不佳已不適合現代生活,或是即將入住者的人口結構不同,而不再符合需求,都必須再次賦予它重生的意義。經常改造老屋,而且十分有心得的耀昀創意設計蔡昀璋設計師,將兩間十分棘手的長型屋,依據居住者的生活習性,重新整頓成動線合宜、比例絕佳的新生活天地。
破舊立新 長型老屋改造案例 CASE x 2
CASE 01
這間長型屋有著難以避免的單面採光困擾,對帶著六歲稚齡老大與新生兒的夫妻倆人來說,需要的是給小孩更為明亮寬敞的生活空間,以及可以隨時照應的動線考量。

祕技 01 開放公領域分享採光
設計師將公領域打通串聯,去掉長型屋走道阻礙採光的困局,進門規劃半矮鞋櫃,盡量讓客廳的自然光線得以分享全屋,同時也能保持通暢的動線,讓孩子有更安全的生活空間。

祕技 02 以餐廚區為生活重心
為了讓喜歡烹飪的女主人,不管是在客廳或下廚時,都能隨時照看小孩,設計師將餐廳、廚房移位,重新規劃在屋子正中央,面積比例幾乎與客廳不相上下,以一張大餐桌凝聚情感,讓全家人以餐廳作為生活重心。為了讓採光更充足,特別在牆面開出小窗;格局調整後,更多出一間多功能室可以擺放鋼琴!


▲Before 平面圖提供_耀昀創意設計

▲After 平面圖提供_耀昀創意設計
CASE 02
屋主長年在澳洲生活,一家六口回台時,經常要解決居住難題。因此,在父親家附近買下在台居所,老屋重整後不但要符合人口結構,住起來舒適不擁擠,還要滿足合西式生活需求。

祕技 01 打斜格局比例重規劃
設計師摒棄傳統以櫃子拉平牆面,把屋子每個區塊都喬正的手法,而是將原始格局中過大的客廳拉成斜角,分出部分腹地給次臥,再利用角度形成的畸零區做滿隱藏收納。因此,電視牆後方有個小儲藏室收納雜物,旁面則是小巧的展示平檯,空間大器而不亂。沙發牆後方則是多出臥榻區,成為小朋友的遊戲空間。

祕技 02 無動線設計空間變大
打斜後的格局,視線不再受制直角方框,無動線的空間設計,讓人從客廳就能一眼望向後方的餐廳、廚房與琴房,營造出更有景深感的視覺穿透,原先的過道也納入使用坪效,讓原本侷促的餐廳空間放大,變成動線樞紐,大家族也能一起用餐,感情更融洽。


▲Before 平面圖提供_耀昀創意設計

▲After 平面圖提供_耀昀創意設計
小編的最愛
在廚房牆上雋刻女主人的名字,打造獨一無二的專屬天地;為習慣西方生活的屋主設置雙水槽洗面檯,這些貼心巧思,更讓屋主身心獲得最大的滿足。