扭轉老屋未來 打破格局打動人心
轉載-
【設計家】:https://www.searchome.net/article.aspx?id=35861
作者_王莉姻 圖片提供_耀昀創意設計

設計師遇到老屋,最常見的問題,就是舊裝潢不合新屋主心意,原格局不符合未來的使用需求。耀昀創意設計的蔡昀璋設計師,總是能從老舊空間的疑難雜症中,準確的診斷出癥結,扭轉困局變成最佳格局。這兩間老屋,一間是為了鄰近父親住所,一間是父母原有的房子,但是對已經成家立業的下一代來說,都必須改頭換面一番,才能因應新屋主想要的全新生活面貌,真正在這裡安身立命。
CASE x 2
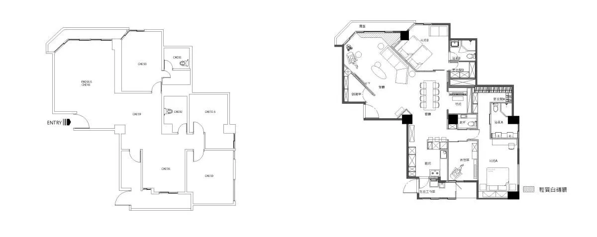
CASE 01 方正格局變歪打斜 空間分配得當
Before:長年旅居澳洲的男主人,經常回台探望老父,夫妻帶著 4 個孩子,住的問題常是困擾,因此買下這間老屋作為度假棲身之所。原有的方正格局,客廳過大,卻沒有適當的電視牆面;過小的餐廳與廚房,甚至放不下冰箱,完全不合乎六口之家的需求。

▲Before & After 平面圖提供_耀昀創意設計。
After:設計師突破傳統區劃,將格局全部打斜,反而讓動線穿透全屋,全家人互動更無礙。而斜向之後形成的畸零區,全部加以利用,電視牆後方多出儲藏室,沙發旁則做成小朋友玩耍的臥榻。原本的主臥後移,將兩房打通變成有更衣室有主衛浴的大空間;原本過大的客廁重新調整,一分為二成為簡單客廁與琴房;再將一房拆除,將部分坪數讓給廚房,保留一間小休閒室。原本直角的通道納入餐廳坪效,不但視覺不受阻,擺放 8 人座餐桌也不成問題。該大的空間變大了,縮小的琴房與休憩室位置也調整的剛剛好。



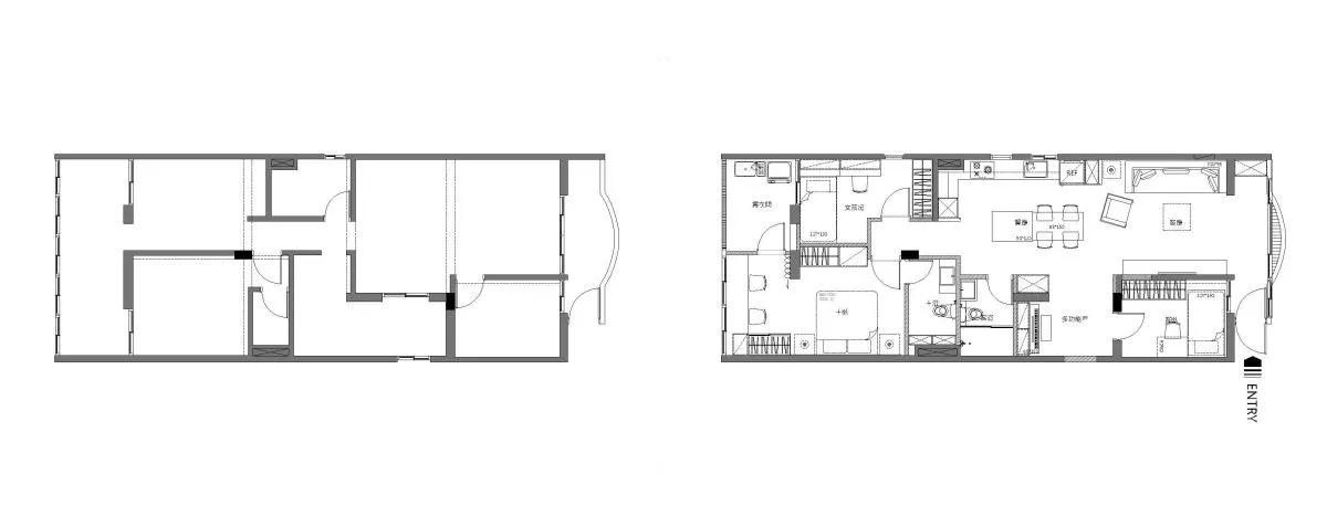
CASE 02 零碎格局橫向串聯 聚焦家人情感
Before:父母將租屋收回,讓孩子自住。原屋的格局過於零碎,採光受阻,餐廳大而無當,壓縮了客廳及廚房的坪數,狹小而不實用。屋主夫妻希望老屋翻新後,徹底發揮家庭凝聚情感的作用,將公領域變成開放而寬敞,與兩個小孩能隨時互動。

▲Before & After 平面圖提供_耀昀創意設計。
After:女主人很喜歡下廚,更希望在料理時,也能隨時照看孩子。因此,設計師將原本直向的格局變為橫向串聯,空間打開了,通道變短了,採光也得以分享。機能超強的餐廚區成為全屋的重心,幾乎與客廳面積各占一半。中島銜接餐桌,流理檯與電器櫃成L型貼牆而設,四邊則留出回字型動線,女主人作飯時,小朋友就在餐桌寫功課,或在客廳玩耍,或在琴房彈奏,都不會離開媽媽的視線;藉由空間的緊密連結,讓全家人自然而然的在這裡歡聚交流。最後方的長廊一半保留為工作間,一半則納入主臥,讓屋主夫妻享有更舒適的休憩空間。



小編有感
格局上的創意調整,就讓兩間老屋的華麗變身,更凸顯蔡設計師融入建築概念,化腐朽為神奇的設計功力。
【設計家】:https://www.searchome.net/article.aspx?id=35861
作者_王莉姻 圖片提供_耀昀創意設計

設計師遇到老屋,最常見的問題,就是舊裝潢不合新屋主心意,原格局不符合未來的使用需求。耀昀創意設計的蔡昀璋設計師,總是能從老舊空間的疑難雜症中,準確的診斷出癥結,扭轉困局變成最佳格局。這兩間老屋,一間是為了鄰近父親住所,一間是父母原有的房子,但是對已經成家立業的下一代來說,都必須改頭換面一番,才能因應新屋主想要的全新生活面貌,真正在這裡安身立命。
CASE x 2
CASE 01 方正格局變歪打斜 空間分配得當
Before:長年旅居澳洲的男主人,經常回台探望老父,夫妻帶著 4 個孩子,住的問題常是困擾,因此買下這間老屋作為度假棲身之所。原有的方正格局,客廳過大,卻沒有適當的電視牆面;過小的餐廳與廚房,甚至放不下冰箱,完全不合乎六口之家的需求。

▲Before & After 平面圖提供_耀昀創意設計。
After:設計師突破傳統區劃,將格局全部打斜,反而讓動線穿透全屋,全家人互動更無礙。而斜向之後形成的畸零區,全部加以利用,電視牆後方多出儲藏室,沙發旁則做成小朋友玩耍的臥榻。原本的主臥後移,將兩房打通變成有更衣室有主衛浴的大空間;原本過大的客廁重新調整,一分為二成為簡單客廁與琴房;再將一房拆除,將部分坪數讓給廚房,保留一間小休閒室。原本直角的通道納入餐廳坪效,不但視覺不受阻,擺放 8 人座餐桌也不成問題。該大的空間變大了,縮小的琴房與休憩室位置也調整的剛剛好。



CASE 02 零碎格局橫向串聯 聚焦家人情感
Before:父母將租屋收回,讓孩子自住。原屋的格局過於零碎,採光受阻,餐廳大而無當,壓縮了客廳及廚房的坪數,狹小而不實用。屋主夫妻希望老屋翻新後,徹底發揮家庭凝聚情感的作用,將公領域變成開放而寬敞,與兩個小孩能隨時互動。

▲Before & After 平面圖提供_耀昀創意設計。
After:女主人很喜歡下廚,更希望在料理時,也能隨時照看孩子。因此,設計師將原本直向的格局變為橫向串聯,空間打開了,通道變短了,採光也得以分享。機能超強的餐廚區成為全屋的重心,幾乎與客廳面積各占一半。中島銜接餐桌,流理檯與電器櫃成L型貼牆而設,四邊則留出回字型動線,女主人作飯時,小朋友就在餐桌寫功課,或在客廳玩耍,或在琴房彈奏,都不會離開媽媽的視線;藉由空間的緊密連結,讓全家人自然而然的在這裡歡聚交流。最後方的長廊一半保留為工作間,一半則納入主臥,讓屋主夫妻享有更舒適的休憩空間。



小編有感
格局上的創意調整,就讓兩間老屋的華麗變身,更凸顯蔡設計師融入建築概念,化腐朽為神奇的設計功力。