【哎!早知道…EP8】雜貨五金行大爆改!老舊長型空間分三段,擁有輕食吧台、會議區&電控玻璃辦公室
轉載-(2026-01-16)
【設計家】:https://www.searchome.net/article.aspx?id=83902
編輯 Chloe Jheng|圖片提供 耀昀創意設計
設計公司:耀昀創意設計
設計師:蔡昀璋
設計風格:北歐風
屋齡狀況:老屋(41~50年)
空間坪數:28/坪
空間格局:商業空間
主要建材:鐵道磚、花磚、木紋磚、灰鏡、系統板材、噴漆、石英石、乳膠漆

屋主早知道
此案雖然看起來像是一般住宅,但實際上是從事電子業的屋主,替事業打造的一個招待客戶、能不受時間與外界影響的交誼空間。這間屋齡超過40年,位於台北市的老屋為傳統長型屋,原始為雜貨五金行,一樓樓面約25坪、加上一個3坪的地下室。改造計畫將空間畫分成三進式設計,前驅規劃成主要會議空間,中間則加入住宅客廳與中島吧台的設計,創造出一個比咖啡廳更舒適的談天空間;最後面的區塊則利用玻璃帷幕打造獨立辦公空間。整體著重在基礎工程的翻新,運用木紋磚而非超耐磨木地板,對於辦公空間來更利於清潔;天地壁也重新做了防水和油漆,呈現出一個有居家般舒適、同時能作為談生意用的專屬辦公交誼所。
►推薦屋主案例看這裡 https://www.searchome.net/designercase.aspx?case=77029
個案基本資料
地點:台北市大同區
屋齡:40 年老屋
屋型:長型屋
風格:北歐風
室內:一樓 25 坪+地下室 3 坪
格局:招待所兼辦公室
職業:電子產
改造了什麼
重點1:基礎工程
原本老舊的五金行屋況很糟,不僅水電管線老舊、水泥地板龜裂,壁癌問題也十分嚴重。設計師因應改造後的需求,將水電管線全數更換,地板改鋪設木紋磚,天花板重新粉刷後配置軌道燈和燈帶照明,選擇暖色燈光增添更多優閒的氣氛。
重點2:三進格局
原本雜貨五金行的格局十分簡單,前面就是排列的貨架,後面簡單規劃一個辦公桌以及廁所和儲藏間。改造計畫將鐵捲門化成落地玻璃增加採光,第一區塊擺放大長桌適合談生意;中間區段則移植住宅客廳設計,擁有舒適沙發與中島吧台茶水區;最後一塊則用電控玻璃帷幕包覆,打造帶有隱私卻又能洞悉外面的辦公空間。
重點3:材質挑選
雖然是辦公招待空間,但在材質上也是精心挑選,像是地板材質用更為耐磨好清潔的木紋磚取代一般住宅的超耐磨木地板,茶水區立面鋪貼地鐵磚,沙發背牆則用特殊塗料鋪敘,透過建材的堆疊呈現出帶有精緻度的辦公空間。
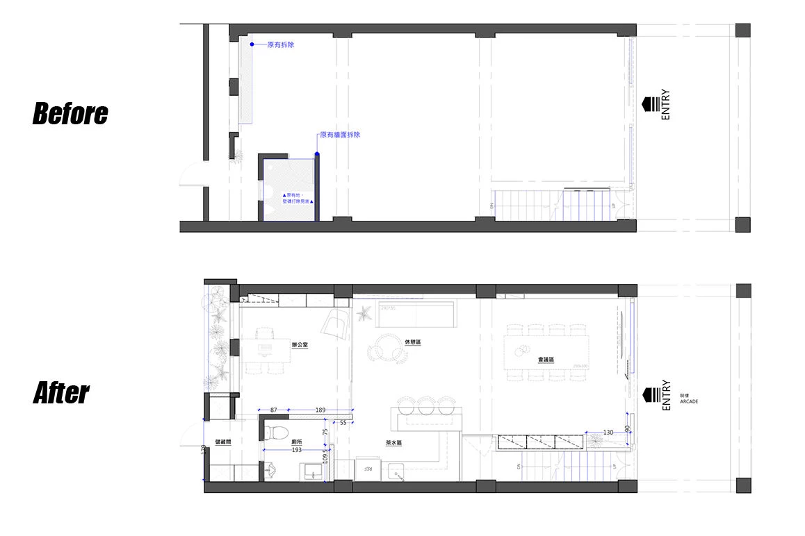
平面圖解析(BA對照)
傳統長型屋的前身又是店面設計,在改造時首重基礎工程!針對老舊的管線全數更換,根除壁癌並剔除剝落的漆面,龜裂的水泥地板也重新打磨;雜貨五金行的鐵捲門更換為隔音落地玻璃,避免林馬路的住宅再談生意時會被外面車流吵雜聲影響。考量到辦公空間並不會拖鞋,因此全室鋪設木紋磚,利於清潔維護;將長型空間以接近均分的比例分成三段式規劃,前驅簡單擺放大桌方便多人談生意,中間則移植小套房客廳與開放式廚房的概念,讓屋主談生意與敘舊時不用再到外面的咖啡廳,受到時間地點限制;最底端作為辦公空間的區域,選擇電控玻璃帷幕,隨需求自由切換成清玻璃或霧玻璃,老舊長型屋順利轉型,成為一個有家庭般溫馨舒適的辦公招待所。

▲(Before+After)平面圖提供_耀昀創意設計
早知道就這樣
1.門面這樣改
雖然同樣都是商業用途的空間,但是對於空間的要求不同,選擇的裝修策略也會完全不一樣。將原本雜貨五金行的落地玻璃更換成隔音玻璃,避免與客戶談生意的時候,被馬路上車流、喇叭以及人流產生的噪音影響;局部牆面鋪設大地色磁磚,作為公司logo的標示區,呈現出精緻體面的門面設計。
Before

After

2.第一區這樣改
設計師將長型空間均分三等做重新分配,第一區塊設定為與多人一起開會的待客區,將原本佈滿零亂展示架的五金行全數拆除,地板改鋪設耐磨好清潔的木紋磚;天花板重新整理後加裝軌道燈照明,呈現帶有工業性格的空間設計,呼應屋主電子產業。單側牆面利用特殊塗料鋪敘,在自然光照熱下呈現自然的紋理變化。
Before

After


另一側拆除原本破損的展示架,根據樑厚度嵌入一座複合式收納櫃,拉齊立面水平更顯進門的寬敞感。收納櫃選擇溫潤的木皮,門片櫃內可以收納工作用的資料,中段鏤空加入異材質板材與燈帶,可以用來擺放盆栽、香氛等飾品;特別不做滿整面牆,而是在最外側挑選一個造型矮櫃,降低量體的壓迫感,讓多元型態的收納豐富空間表情。
Before

After


3.第二區這樣改
原本的雜貨五金行對長型屋的劃分十分粗糙,在前段貨架外、僅透過一張收銀辦公桌作為區隔,後面則又是成堆凌亂的鐵架。改造計畫中維持空間的開放,但透過陳設創造不同區塊的機能。長型屋的第二區塊以小套房的客廳為藍本,擺放一張舒適的沙發創造居家感外,針對會議需要用簡報投影,則選用活動電視可根據洽談的場域達到最適合的視角。沙發背牆整面為特殊塗料,但特別做了局部鏤空,搭配燈帶照明創造出不同視角的空間端景。
Before

After


沙發對側則打造成開放式中島廚房,以花磚作為機能分野,ㄇ字型廚房擁有寬敞的料理檯面,可以充裕的沖泡茶水,甚至叫外送時也可以在此呈盤、只做簡單輕食。選擇ㄇ字型廚房還可以提供一個舒適的輕食吧台,上方規劃吊架能擺放藏酒,有時候工作疲憊之虞也可以小酌一杯。
After


4.第三區這樣改
空間最底端原本為雜亂的小間儲藏室,以及一間衛浴,設計師重新調整兩個空間的配比,並將一部分的展架空間挪用,在最底端規劃成業主的獨立辦公空間。選擇用電控玻璃帷幕作為隔間牆,可以隨著需求和情境調整為清玻璃或霧玻璃狀態,保有獨立辦公區的隱私外,又不會有客戶進入空間時沒有察覺。辦公區內部選用較為沈穩的木皮,櫃體同樣沿著樑柱規劃讓空間更為方更、更顯寬敞;櫃體型態同樣選擇開放與封閉混搭的複合式收納櫃,能滿足那種收納展示需求。採光窗加裝木百葉與空間整體搭配,也能隨時調節光線,搭配上方可調整角度的軌道燈,照顧到私人隱私同時也滿足辦公時的光線。
Before

After


